
San Lazzaro di Savena
La villa rustica di Roncadello, situata lungo la riva sinistra dell'Idice a 110 m. s.l.m., in un ampio pianoro collinare (superficie di circa mq 7250) prospettante sul fiume, godeva di condizioni insediative ottimali, simili a quelle di numerosi siti di epoca romana individuati nelle vallate fluviali parallele, in terrazzamenti situati a quote medio-basse. La localizzazione sulle prime colline a sud della via Aemilia doveva consentire inoltre all'azienda agricola di inserirsi nei traffici commerciali imperniati sulla via consolare e su Bononia e di integrare la cerealicoltura con colture specializzate (vigneti e frutteti), allevamento ed eventualmente pastorizia, e forse anche con altre attività dell'economia boschivo-pastorale di montagna, come il commercio di legname. In particolare il rinvenimento di un glirarium, dolio per l'allevamento dei ghiri, attesta la pratica della pastio villatica, di cui siamo informati da alcune fonti antiche.
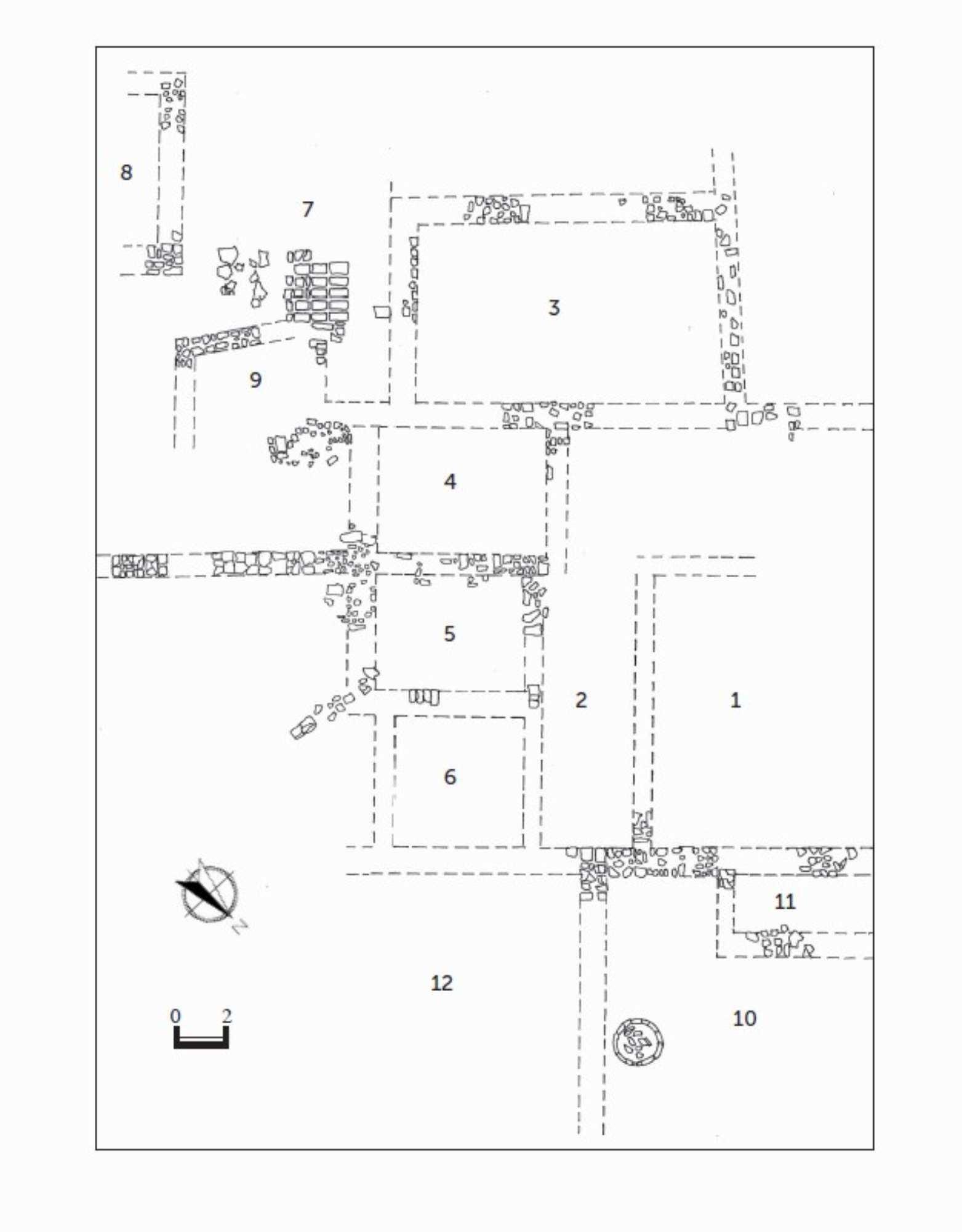
Gli ambienti della villa sembrano organizzati, secondo uno schema centripeto” intorno ad una corte interna scoperta A SE del cortile si susseguiva una serie di ambienti disimpegnati tutti o in parte da un vestibolo-corridoio o portico.
Nel complesso la sequenza di ambienti doveva costituire il settore residenziale della villa rustica: l'appartamento del proprietario si sviluppava con un triclinium/oecus e con alcuni cubicola ed era dotato di un ambiente pavimentato a sesquipedali sul quale poggiavano delle suspensura . Sia il pavimento a ipocausto sia la presenza di mattoni forati consentono di identificarlo come un vano riscaldato adibito a funzioni termali (calidarium o tepidarium). L'esistenza di almeno una stanza dipinta è testimoniata da alcuni frr. di intonaco colorato
Lungo il lato nord-orientale della corte interna doveva essere ubicata la pars fructuaria della villa comprendente dei vani adibiti a magazzino, fra cui probabilmente una cella vinaria per la fermentazione del vino entro dolia e forse un calcatorium per la pigiatura dell'uva.
La ceramica fine da mensa rinvenuta attesta che un certo benessere dovette caratterizzare costantemente l'insediamento di Roncadello dalla tarda età repubblicana fino ad almeno il III sec. d.C. L'excursus cronologico rivelato dai manufatti copre un lungo arco di tempo, dal II – I secolo a.C. al VI secolo d.C.
Per il periodo primo-imperiale l'abbondanza di vasellame fine da mensa attestato nella villa denota il benessere della residenza e la capacità d’acquisto del proprietario. Evidentemente le attività produttive dell’azienda agricola erano fiorenti e accompagnate da una buona commercializzazione, favorita dalla facilità di trasporto delle merci che la vicinanza del fiume e delle strade sulle due sponde garantivano. In questo momento si ha probabilmente l'ampliamento delle strutture e l'aggiunta del quartiere termale.
Con la media età imperiale si assiste alla progressiva contrazione dei circuiti commerciali e al consolidarsi di un'autosufficienza produttiva che determina un carattere misto dell'economia, basata ora su coltivazioni intensive ed estensive, ma anche sull'allevamento e attività artigianali complementari. In epoca tardoantica prosegue il decremento qualitativo e quantitativo delle merci dell’insediamento di Roncadello e l'orizzonte commerciale si conferma essenzialmente locale: risale probabilmente alle fasi finali dell'insediamento il glirarium destinato all'allevamento di ghiri a scopo alimentare.
Nell’ultimo periodo appunto, quando la villa era già in decadenza (oppure addirittura in un momento successivo alla sua distruzione, quando era in ruderi), il settore delle terme domestiche, ormai in cattive condizioni, sembra aver ricevuto una nuova destinazione funzionale forse per svolgere un'attività metallurgica.
Diversi indizi, quali la presenza di cenere e di tracce di incendio sembrano attestare una fine violenta dell'insediamento, forse da collocarsi nel VI sec. d.C., epoca a cui sono riferibili i materiali più tardi. Possiamo ipotizzare due diverse circostanze per la distruzione della villa rustica di Roncadello: o la guerra goto-bizantina (535-553 d.C.) o i successivi attacchi longobardi.
Pubblicazioni e cataloghi
Battelli P.
La villa rustica di Roncadello di Sotto: il contesto archeologico e i materiali
Lenzi F./ Nenzioni G. (a cura di)
Savena – Idex. Due insediamenti rustici nell’ager bononiensis orientale
Bologna
2016
pp. 93-240
Pubblicazioni e cataloghi
Lenzi F.
Romani V. (a cura di)
La fattoria romana di Roncadello di Sotto
San Lazzaro di Savena la storia l’ambiente la cultura
Bologna
Luigi Parma
1993
pp. 500-501
Pubblicazioni e cataloghi
Pandolfi A.
Castel dei Britti, podere Roncadello di Sotto
Vitali D. (a cura di)
Monterenzio e la valle dell’Idice. Archeologia e storia di un territorio
Casalecchio di Reno
1983
pp. 230-234
loc. Castel de Britti
San Lazzaro di Savena (BO)