
Ravenna
Nel 1964, durante i lavori di sterro della basilica di San Severo furono portate alla luce strutture murarie appartenenti ad un complesso edilizio di età romana su cui si installò successivamente l'edificio ecclesiastico.
L'edificio è stato interpretato una villa urbano-rustica di età augustea dotata di terme. In età adrianea e poi in età severiana il complesso venne ampliato e furono effettuati interventi di restauro.
Si segnala il rinvenimento di due soglie (B)(C), in marmo rosso di Verona, frammenti di intonaco dipinto, numerosi frammenti di balsamari e vasetti di forme diverse in vetro, numerose monete, frammenti ceramici in terra sigillata italica, bolli laterizi.
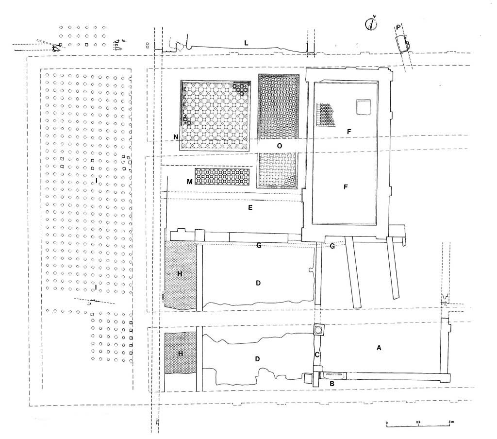
L’edificio si presentava composto da un cortile (A) in terra battuta, chiuso da un muro lesenato; dal cortile si accedeva, al grande ambiente pavimentato in opus signinum (D), comunicante con un corridoio (E), pavimentato in opus tessellatum, e ad una vasca (H), pavimentata in esagonette, da cui partiva una canaletta-fognatura (G). Entrambi i vani poggiavano su suspensurae. Vi era poi una grande vasca (F), pavimentata in tarsia marmorea, un grande ambiente (I) anch’esso su suspensurae, pavimentato in cocciopesto, un ambiente (L), pavimentato in cocciopesto. Fra la vasca pavimentata in tarsia e tre degli ambienti si inserivano altri tre ambienti (M)(N)(O), originariamente divisi, pavimentati a mosaico.
N.B. le lettere fra parentesi si riferiscono alla planimetria della villa presente nella galleria immagini
Pubblicazioni e cataloghi
Augenti A.
Dalla villa romana al monastero medievale: il complesso di San Severo a Classe
Ideologia e cultura artistica tra Adriatico e Mediterraneo orientale (4.-10. secolo). Il ruolo dell’autorità ecclesiastica alla luce di nuovi scavi e ricerche
Bologna
Ante Quem
2009
pp. 245-260
Pubblicazioni e cataloghi
Maioli M. G./ Montevecchi G.
Montevecchi G. (a cura di)
Chiesa di S. Severo
Viaggio nei siti archeologici della provincia di Ravenna
Ravenna
Longo
2003
pp. 91-93
Pubblicazioni e cataloghi
Novara P.
Guidobaldi F./ Paribeni A. (a cura di)
Sectilia parietali inediti dagli scavi delle chiese di S. Severo e di S. Apollinare in Classe (Ravenna)
Atti del V Colloquio dell’Associazione Italiana per lo Studio e la Conservazione del Mosaico, 1997
Ravenna
Ed. del girasole
1998
pp. 83-96
Pubblicazioni e cataloghi
Maioli M. G.
Nuovi dati sul complesso archeologico di San Severo a Classe (Ra). Scavi 1981-1991
Corsi di cultura sull’arte ravennate e bizantina
1992
pp. 497-520
Pubblicazioni e cataloghi
Maioli M. G.
Susini G. (a cura di)
La topografia della zona di Classe
Storia di Ravenna. L’evo antico
Venezia
Marsilio
1990
pp. 375-414
Pubblicazioni e cataloghi
Maioli M. G.
La basilica di S. Severo e la casa romana
Classe e Ravenna fra terra e mare. Città, necropoli, monumenti. Un’avventura della archeologia. Gli scavi nella zona archeologica di Classe
Ravenna
ES edizioni Sirri
1987
pp. 65-77
Pubblicazioni e cataloghi
Bermond Montanari G.
I bolli laterizi di Ravenna e Classe
Studi Romagnoli
1973
pp. 33-58
Pubblicazioni e cataloghi
Bermond Montanari G.
La chiesa di S. Severo nel territorio di Classe. Risultati dei recenti scavi
Bologna
Patron
1968
loc. Classe, Chiesa di San Svero
Ravenna (RA)