
Reggio Emilia
Notizie storiche: progetto e costruzione
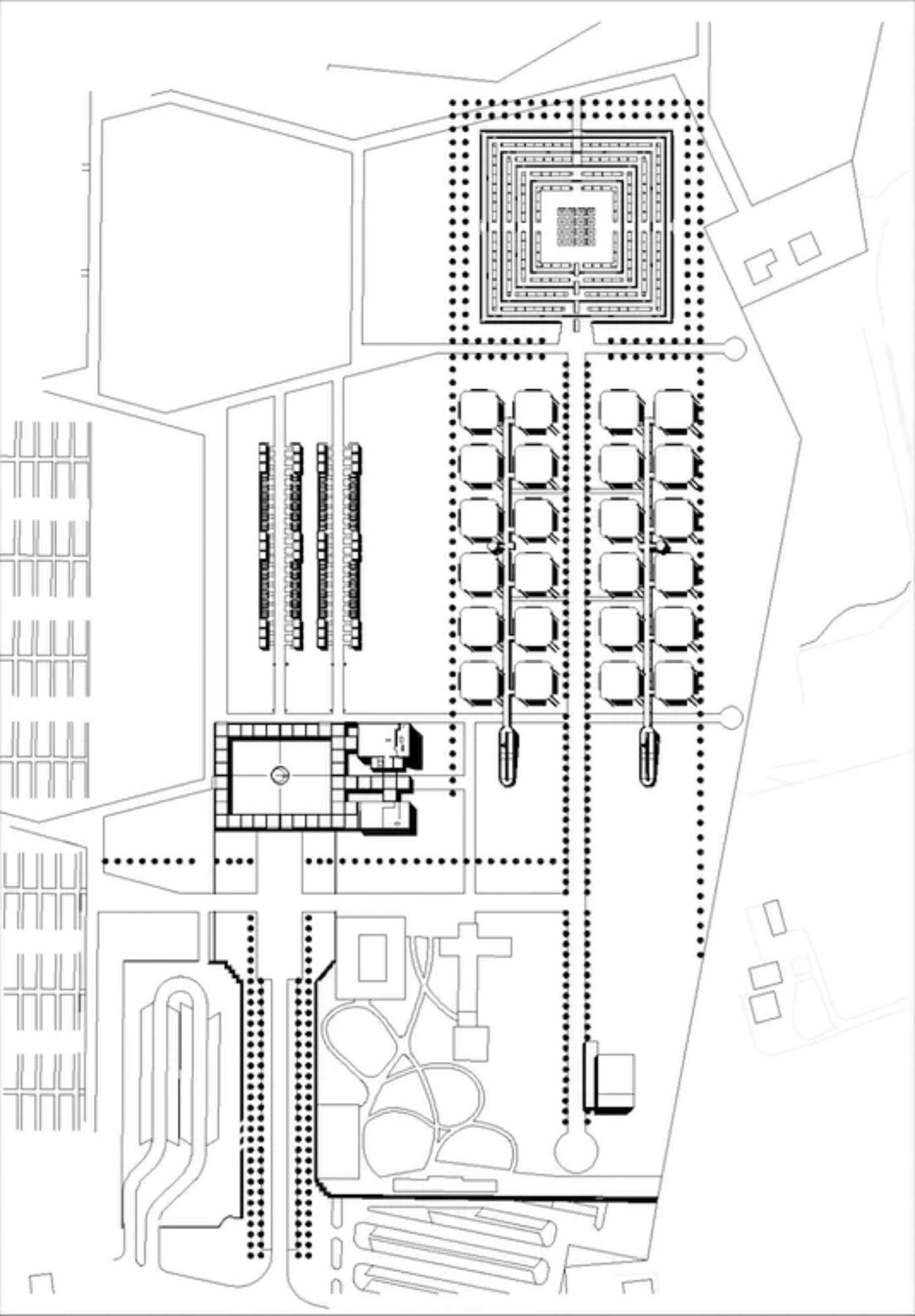
L’amministrazione comunale affida l’incarico di intervenire sul nuovo cimitero suburbano della città, quando i percorsi viari interni e alcuni servizi (camere mortuarie e alloggio custode) sono già in parte realizzati su progetto degli uffici tecnici municipali. Il tema progettuale è necessariamente rivolto all’approfondimento dei manufatti tipici che costituiscono la tipologia cimiteriale, in una ricerca di omogeneizzazione complessiva. L’accesso al cimitero è previsto da un nucleo centrale, non realizzato, costituito da un chiostro rettangolare porticato caratterizzato, sul lato corto, dalla presenza della Chiesa, per le funzioni religiose dei credenti, e dello spazio civile per le celebrazioni dei non credenti. Dal nucleo centrale è possibile raggiungere le diverse zone: i campi inumatori, i sepolcreti, l’ossario e il forno crematorio. I campi per l’inumazione sono caratterizzati da lunghe steli in calcestruzzo, colorato nell’impasto e bocciardato. In corrispondenza di ogni posto salma è previsto un incavo profondo per l’alloggiamento di una lapide in travertino scuro con i segni della fede dell’estinto. I sepolcreti sono collegati a ogni piano da passerelle servite da una rampa di servizio per il trasporto delle salme, mentre i visitatori accedono tramite scale centrali. Sono realizzati in calcestruzzo colorato e bocciardato come le steli per l’inumazione mentre la copertura, così come le quattro coppie di pilastri cilindrici che la sorreggono, è in calcestruzzo a vista di colore grigio. I sepolcreti sono organizzati in due “grappoli” separati dal percorso pedonale principale alberato che ha come fondale, l’ossario connotato da uno spazio centrale quadrangolare a piramide rovesciata. La mancata realizzazione del nucleo centrale di ingresso e smistamento, oltre a privare il complesso di due servizi fondamentali, quali la Chiesa e lo spazio civile, compromette l’integrazione fra le diverse zone. E' la ricerca dell’anti-monumentale a connotare maggiormente quest’opera. L’ossario rifiuta decisamente, sia sotto l’aspetto morfologico che tipologico, la monumentalità tipica di quella simmetria monumentale da sempre rifiutata da Manfredini e dall’architettura moderna. In più, l’aver risolto tale luogo con una volumetria in negativo, la piramide rovesciata, contribuisce ad accentuare l’antico principio dell’”orgoglio della modestia”, fatto di regole semplici ma raffinate, che trova in questa realizzazione ulteriore conferma. Il risultato complessivo è di un’architettura sincera e autentica che certamente sa anche risolvere al meglio una funzione difficile e importante, quella dell’incontro tra i vivi, qualunque sia il loro Credo, e i loro morti.
Fonte: da Marco Dasso, Nuovo Cimitero di Reggio Emilia: ordine spaziale e dinamicità temporale, “L’architettura: Cronache e storia”, n. 376, febbraio 1987, p. 110
Fonte immagini: archinect.com
"5-376, 426, 7-220"
loc. Villa Coviolo
Reggio Emilia
(RE)